cad怎么测量长度

 时间:2024-10-25 07:23:32

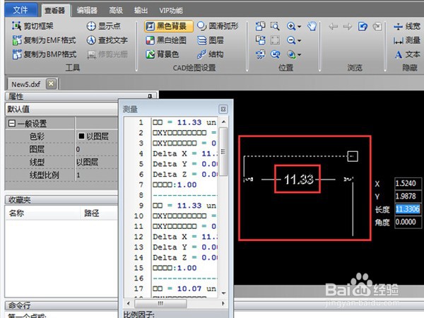
1、选中测量的对象,在查看器中找到“测量”,点击“距离”。

cad怎么测量长度

2、在测量对象的一端点击,会出现一个虚拟尺度,然后拖拉到测量的另一端,这样就会距离下来测量对面的长度了。

cad怎么测量长度
  • cad测量长度并标注尺寸
  • cad里面如何量长度?
  • cad测量尺寸快捷键命令
  • cad怎么一键标注所有尺寸?
  • CAD怎么查看直线长度
  • 热门搜索
    日记250字大全 邮件地址大全 接吻视频大全 牛排的做法大全 日本电影大全 爱情电影大全 辛弃疾简介及生平事迹 绿色食品标志图片大全 鱼类大全 女孩子名字大全