1、打开一个CAD文档,画一个方框,在方框内进行画单向箭头。

2、在键盘上输入LE,按回车键确认,会提示指定第一个引线点,点击方框中的一点。


3、提示指定下一点,选择另一个点使用鼠标点击即可。

4、只需要确定指令,就可以得到这个箭头了。

时间:2024-10-13 09:48:24
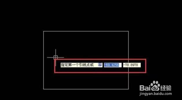
1、打开一个CAD文档,画一个方框,在方框内进行画单向箭头。

2、在键盘上输入LE,按回车键确认,会提示指定第一个引线点,点击方框中的一点。


3、提示指定下一点,选择另一个点使用鼠标点击即可。

4、只需要确定指令,就可以得到这个箭头了。
